Gymnasium hall "Gripe"
Gymnasium hall at "Gripe" school in Split.
For our latest references check our References page.
Gymnasium hall at "Gripe" school in Split.
Residential and commercial building located in Split.
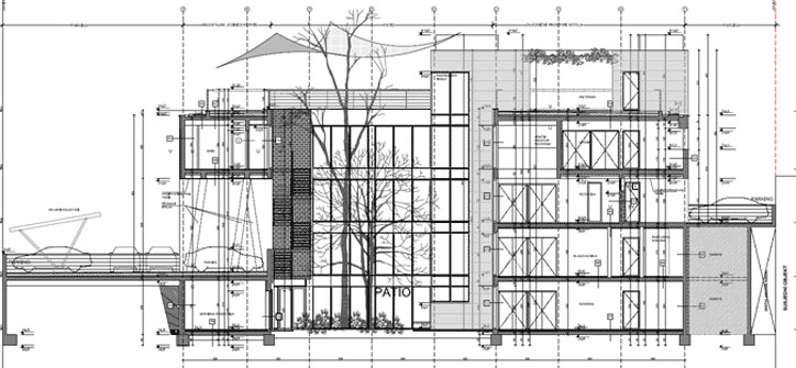
Residential and commercial buildings in Split Dragovode.
Residential building "Adepto" Mejaši Split.
Our services encompass:
Contact us